25.04.2024 – Kurzes Update

25. April 2024 0 Von Raphael

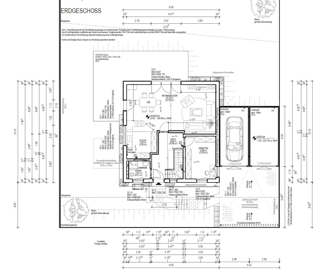
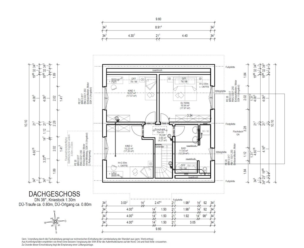
Bei uns tut sich im Hintergrund so einiges. Beispielsweise haben wir jetzt die ersten Pläne des Hauses erhalten (per Mail). Spannenderweise gibt es hier sehr viele Änderungen, die nicht mit uns abgesprochen sind. Beispielsweise wurden jetzt Türen in der Breite verändert und die Türe zum Schlafzimmer nur noch auf 75cm Breite geplant. Wie zum Teufel soll ich da bitte durchpassen?

Naja, wie dem auch sei. Es sind ja die ersten Pläne. Da werden wohl noch so ein paar Revisionen kommen, bis man dann bei den Ausführungsplänen ist.

Laut Fingerhaus sind wir noch im Zeitplan, weshalb ich mir, was Änderungen angeht, auch keine Gedanken mache.

Im Hintergrund gibt es aber für mich vieles zu tun, so hat mich zum Beispiel unsere neue Nachbarin angeschrieben, ob die L-Steine bei uns auf dem Grundstück zwischenparken dürfen, damit die beim Setzen dieser Steine keinerlei Probleme haben. –> Klar geht das, wir haben ja noch etwas Zeit, aber ich finde es sehr lieb, dass wir gefragt wurden. Schließlich hätte es ja auch sein können, dass wir kurzfristig mit dem Bau anfangen und somit den Platz brauchen würden.

Auch hole ich aktuell Angebote von Bodenlegern und Malern ein. Das ist ganz schön nervig den Gewerken hinterherzurennen. Und ab und zu fühlt man sich auch einfach nur verarscht, wenn man die Preise sieht. Ich glaube, dass einige Angebote einfach so hoch sind, damit wir NEIN sagen, oder halt den doppelten Preis bezahlen.

Zum Glück haben wir uns aber schon für jemanden entschieden, der bei uns die Erdarbeiten durchführen darf. Dieser Kontakt zum Herrn Patrick Stein kam über unseren weiteren Nachbarn Simon Aubreville zustande. Sehr gute Sache das, denn Patrick macht einen guten Eindruck und ist preislich auch soweit in Ordnung.

Patrick Stein hat mich auch gerade angerufen und mir Bilder vom Grundstück geschickt, wie die L-Steine vom Nachbarn da so stehen.

Am 04.05.2024 geht es dann zum Tag des Fertighauses nach Fingerhaus und wir werden unser Haus hoffentlich in Eigenregie schnell nochmal bemustern, damit wir dann bei der eigentlichen Bemusterung im Sommer schon alles parat haben.

Wenn ich dran denke und die Zeit finde, kommt dann natürlich der nächste Post.